• +374 (11) 580606
  • info@cost.am
  • Երևան, Նորք Մարաշ

  • Նորք-Մարաշ վարչական շրջանում՝ Գ․ Հովսեփյան 22/29 հասցեում՝ «Տեսարան» ռեստորանի հարևանությամբ է կառուցվում Aurora-ն

  • Դեկեմբեր, 2026

  • Aurora բնակելի համալիր կառուցման փուլում է, շահագործման է հանձնվելու 2026թվ-ի վեջ։

  • սկսած 520`000 դրամից

  • 1 քմ-ի արժեքը 520՝000 - 850՝000 ՀՀ դրամ, կախված հարկից, մակերեսից և կողմնարոշումից։

  • սկսած 55 քմ

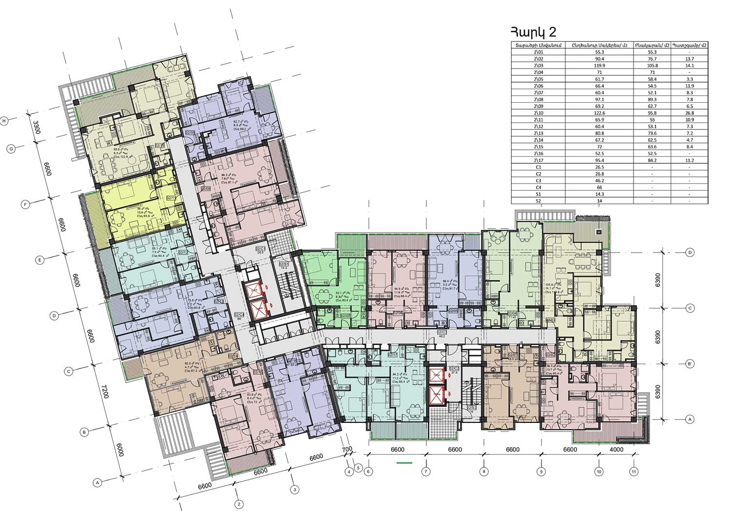
  • Շենքում առկա են 2-4 սենյականոց բնակարաններ՝ 55-212 քմ մակերեսներով

Aurora բնակելի համալիրը տարբերվում է ոչ միայն իր ճարտարապետությամբ, այլև դեպի քաղաք նայող ֆանտաստիկ տեսարանով։

Նորք-Մարաշ վարչական շրջանում՝ Գ․ Հովսեփյան 22/29 հասցեում՝ «Տեսարան» ռեստորանի հարևանությամբ է կառուցվում Aurora-ն։

Կանաչ գոտիների առկայությունն անվիճելի առավելություն է հաղորդում բնակելի համալիրին։ Նվազեցնելով քաղաքային աղմուկի և օդի աղտոտվածության աստիճանը` բուսածածկ տարածքները բարելավում են թաղամասի ընդհանուր բնապահպանական իրավիճակը։ Այդ իսկ պատճառով Երևանի այս հատվածում առաջարկվող բնակարանները առավել պահանջված են և թանկարժեք։

4000 քմ-ի վրա կառուցվող եվրոպական ոճով այս գեղեցիկ շենքն ունենալու է հարմարավետ ու կանաչապատ բակ, հասարակական տարածքներ․․․

Առկա է 55-ից 210 քմ մակերեսով 1-4 սենյականոց 80 բնակարան, ընդ որում՝ 57-ը հնարավոր է գնել Եկամտահարկի վերադարձի ծրագրով։

ՏԻՊԱՅԻՆ ՆԱԽԱԳԾԵՐ