• +374 (11) 580606
  • info@cost.am
  • Երևան, Ավան

  • «Գարուն» բնակելի համալիրը կառուցվելու է Բուսաբանական այգու անմիջապես կողքին

  • 2026

  • Շինարարության ավարտը նախատեսվում է 2026 թվականի ընթացքում։

  • սկսած 31,000,000 դրամից

  • Բնակարանների ընդհանուր արժեները սկսած են 31,000,000 դրամից, կախված հարկից, մակերեսից և կողմնարոշումից

  • սկսած 61,9 քմ

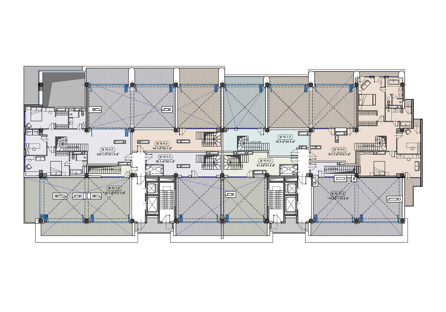
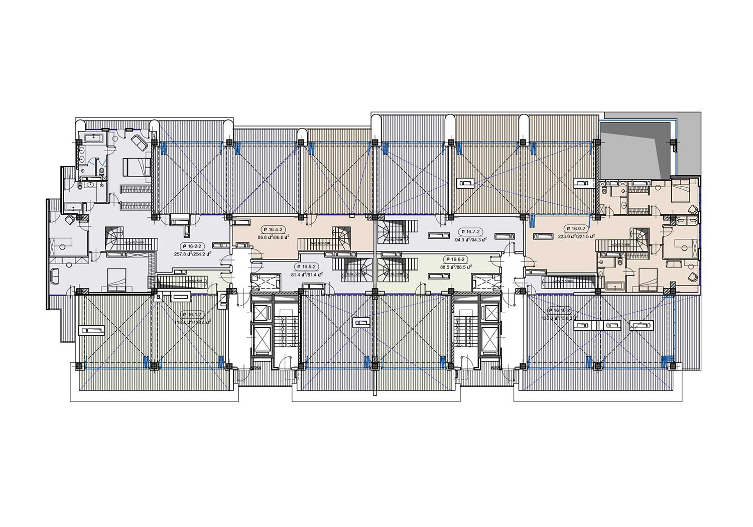
  • 2-4 սենյականոց բնակարաններ՝ 49-100 քմ մակերեսներով

«Գարուն» բնակելի համալիրը կառուցվելու է Բուսաբանական այգու անմիջապես կողքին և ունենալու է շուրջ 4000 քմ կանաչապատ տարածք՝ նախատեսված միայն բնակիչների համար։

ՄԱԿ-ի հայաստանյան գրասենյակի կողմից հաստատված "A" դասի էներգոխնայողության հավաստագիր,

Ստորգետնյա և վերգետնյա առաջին հարկեր՝ նախատեսված հասարակական տարածքների համար

Բնակելի 2-16-րդ հարկերը՝ 2, 2․5, 3, 4 և 5 սենյականոց բնակարաններով և պենտհաուսներով

24/7 անվտանգություն՝ համապատասխան աշխատակիցների և տեսախցիկների միջոցով։

«Գարուն» բնակելի համալիրի ստորգետնյա -2, -3, -4 հարկերում լինելու է ընդարձակ ավտոկայանատեղ՝ նախատեսված 314 ավտոմեքենայի համար, ինչը գերազանցում է պահանջվող չափանիշը։

Մասնաշենքերի վերգետնյա և ստորգետնյա առաջին հարկերը նախատեսված են լինելու հասարակական նշանակության համար։ Այստեղ կարող է գործել ցանկացած բիզնես՝ սուպերմարկետ, հացաբուլկեղենի խանութ, դեղատուն, սրճարաններ, ժամանցային կենտրոններ և այլն։

ՏԻՊԱՅԻՆ ՆԱԽԱԳԾԵՐ

  • Զանգահարեք +374 (11) 580606
  • Գրեք info@cost.am
  • Երկուշաբթի-Ուրբաթ 9։30 - 18։00