• +374 (11) 580606
  • info@cost.am
  • Երևան, Նազարբեկյան

  • Նազարբեկյան Պլազա բազմաբնակելի համալիրը գտնվում է Աջափնյակ վարչական շրջանում՝ Նազարբեկյան 44/3 հասցեում:

  • 2026

  • Նազարբեկյան Պլազա բնակելի շենքը շահագործման է հանձնվելու 2026 թվականին

  • սկսած 450,000 դրամից

  • 1 քմ-ի արժեքը 450՝000 - 515՝000 ՀՀ դրամ, կախված հարկից, մակերեսից և կողմնարոշումից

  • սկսած 47.7 քմ

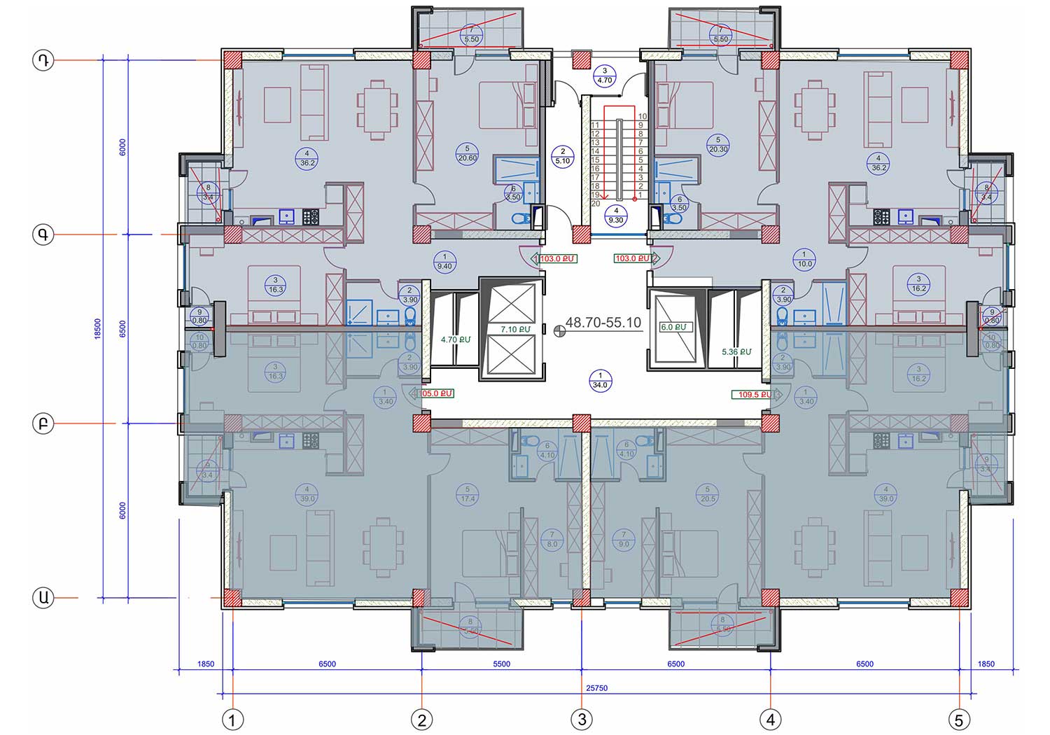
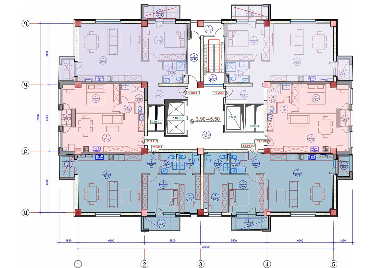
  • 2-4 սենյականոց բնակարաններ՝ 47.7 - 130.7 քմ մակերեսներով

Երազո՞ւմ եք գեղատեսիլ տարածքում ընդարձակ և հարմարավետ բնակարանի մասին: Ժամանակակից բարձրահարկեր ՝ արդի նախագծային լուծումներով և համայնապատկերային պատուհաններով, շրջապատված է այլ նորակառույց համալիրներով, որոնք միասին ստեղծում են նոր քաղաքային միջավայր։

Բնակելի համալիրը բաղկացած է 18 վերգետնյա և 2 ստորգետնյա հարկերից: Կառուցապատողը շեշտադրումն արել է միայն բաձրորակ շինանյութերի և նորարարական տեխնոլոգիաների վրա, ինչի շնորհիվ համալիրն ունի աննախադեպ սեյսմակայունություն, ձայնամեկուսացում և ջերմամեկուսացում, ինչպես նաև հրդեհային անվտանգություն։

Նազարբեկյան Պլազա բազմաբնակելի համալիրը, որը գտնվում է Աջափնյակ վարչական շրջանում, 𝙂𝙖𝙧𝙖𝙜𝙚 𝙈𝙖𝙡𝙡-ի հարևանությամբ:

Հասանելի հասարակական և կենցաղային ենթակառուցվածքներ՝ խանութներ, մանկապարտեզներ, սրճարաններ, ֆիթնես կենտրոններ։ Կանաչապատ տարածքներ՝ զբոսանքի արահետներով, մանկական և մարզահրապարակներով։ Անհոգ եղեք երեխաների անվտանգության համար։ Հարևանությամբ տեղակայված ավտոբուսային պարկից հարմարավետ երթուղիներ են գործում տարբեր ուղղություններով։

ՏԻՊԱՅԻՆ ՆԱԽԱԳԾԵՐ

  • Զանգահարեք +374 (11) 580606
  • Գրեք info@cost.am
  • Երկուշաբթի-Ուրբաթ 9։30 - 18։00