• +374 44 580606 | +374 95 580606 | +374 43 580606 | +374 96 580606
  • Երևան, Կենտրոն

  • ՖԻՐԴՈՒՍ ՊՐԱՅՄ բնակելի համալիր նորակառույց բնակելի թաղամասը կառուցվում է Խանջյան փողոցի սկզբնամասում։

  • 2028

  • ՖԻՐԴՈՒՍ ՊՐԱՅՄ բնակելի համալիր 1 մասնաշենքը շահագործման է հանձնվելու 2028 թվականին

  • սկսած 3500 ԱՄՆ դոլարին համարժեք դրամ

  • 1 քմ-ի արժեքը սկսած 3500 ԱՄՆ դոլարին համարժեք դրամից, կախված հարկից, մակերեսից և կողմնարոշումից

  • սկսած 50 քմ

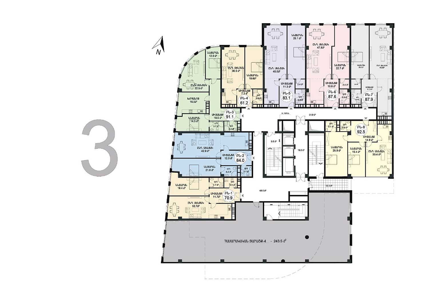
  • 2-4 սենյականոց բնակարաններ՝ 50-100 քմ մակերեսներով

Երևանի կենտրոնը մշտապես առանձնացել է ձգողականության մեծ ուժով։ Մարդիկ ցանկանում են ապրել այստեղ, աշխատել ու նույնիսկ հանգստանալ

Քաղաքի աղմուկից մեր իսկ շենքերով պաշտպանված բակային տարածքում կլինեն ճեմուղիներ, կանաչապատ տարածք, սրճարաններ, խանութներ, հանգստի գոտի և այլն։Սրճարանների և բակային ենթակառուցվածքի մի մասը տեղակայված է լինելու շենքերի տակ, որտեղ հաճելի է լինելու ժամանակ անցկացնել և՛ անձրևոտ, և՛ շոգ օրերին։ Հատուկ ընտրված կանաչապատման շնորհիվ մեր այգին գեղեցիկ է լինելու տարվա ցանկացած եղանակին:

Այստեղից 2-3 րոպեի ընթացքում ոտքով կարելի է հասնել Հանրապետության Հրապարակ, Օղակաձև զբոսայգի, Երևանի Սուրբ Գրիգոր Լուսավորիչ մայր եկեղեցի, Վերնիսաժի այգի, մետրոյի կայարաններ և այլն։

ՏԻՊԱՅԻՆ ՆԱԽԱԳԾԵՐ

  • Զանգահարեք +374 (11) 580606
  • Գրեք info@cost.am
  • Երկուշաբթի-Ուրբաթ 9։30 - 18։00